71 Collective housing

Paris, 2019


Date 2019
Location Paris

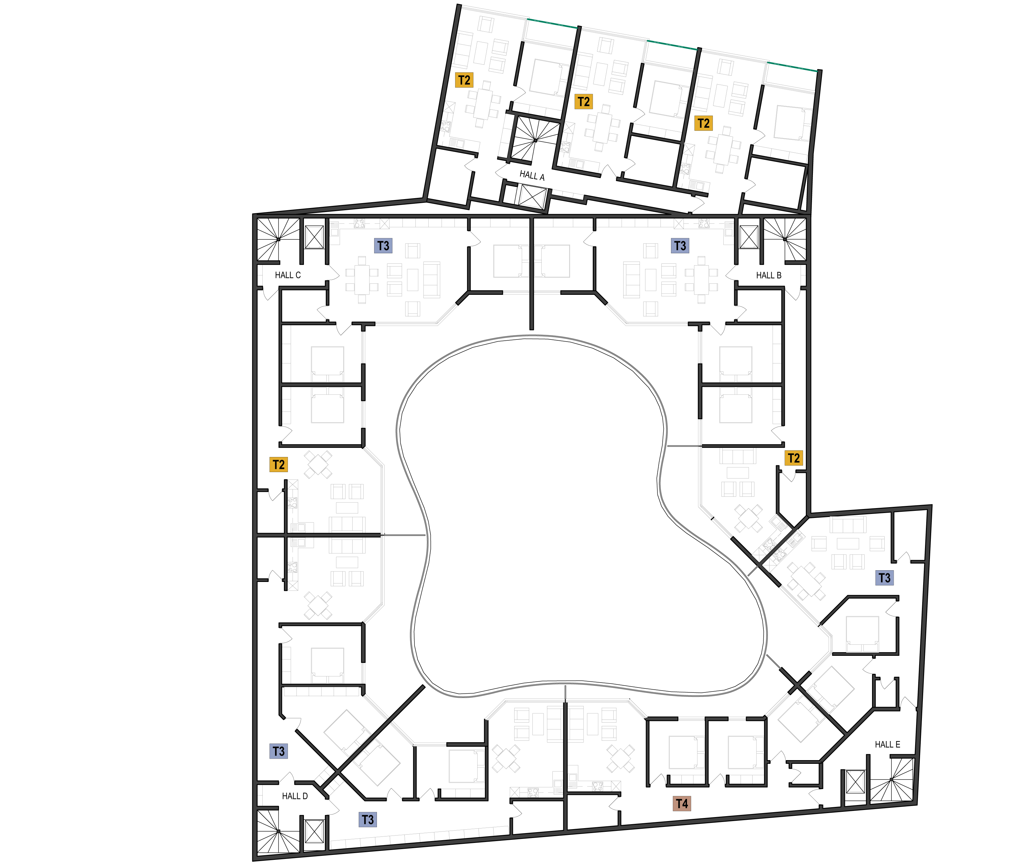
The R + 6 collective building revolves around a typically Parisian interior courtyard, surrounded by the undulating passageways of the terraces, whose different curves from one floor to another give dynamism to the interior space. The facades of the apartments are fully glazed, on a single 90 cm grid. The terraces are vegetated.