Toggle navigation
WORK
RESIDENTIAL
CULTURE
EDUCATION
HOTELS
COMMERCIAL
TRANSPORT
HIGH-RISE
URBAN PLANNING
WORK
ABOUT US
CONTACT
RESIDENTIAL
CULTURE
EDUCATION
HOTELS
COMMERCIAL
TRANSPORT
HIGH-RISE
URBAN PLANNING
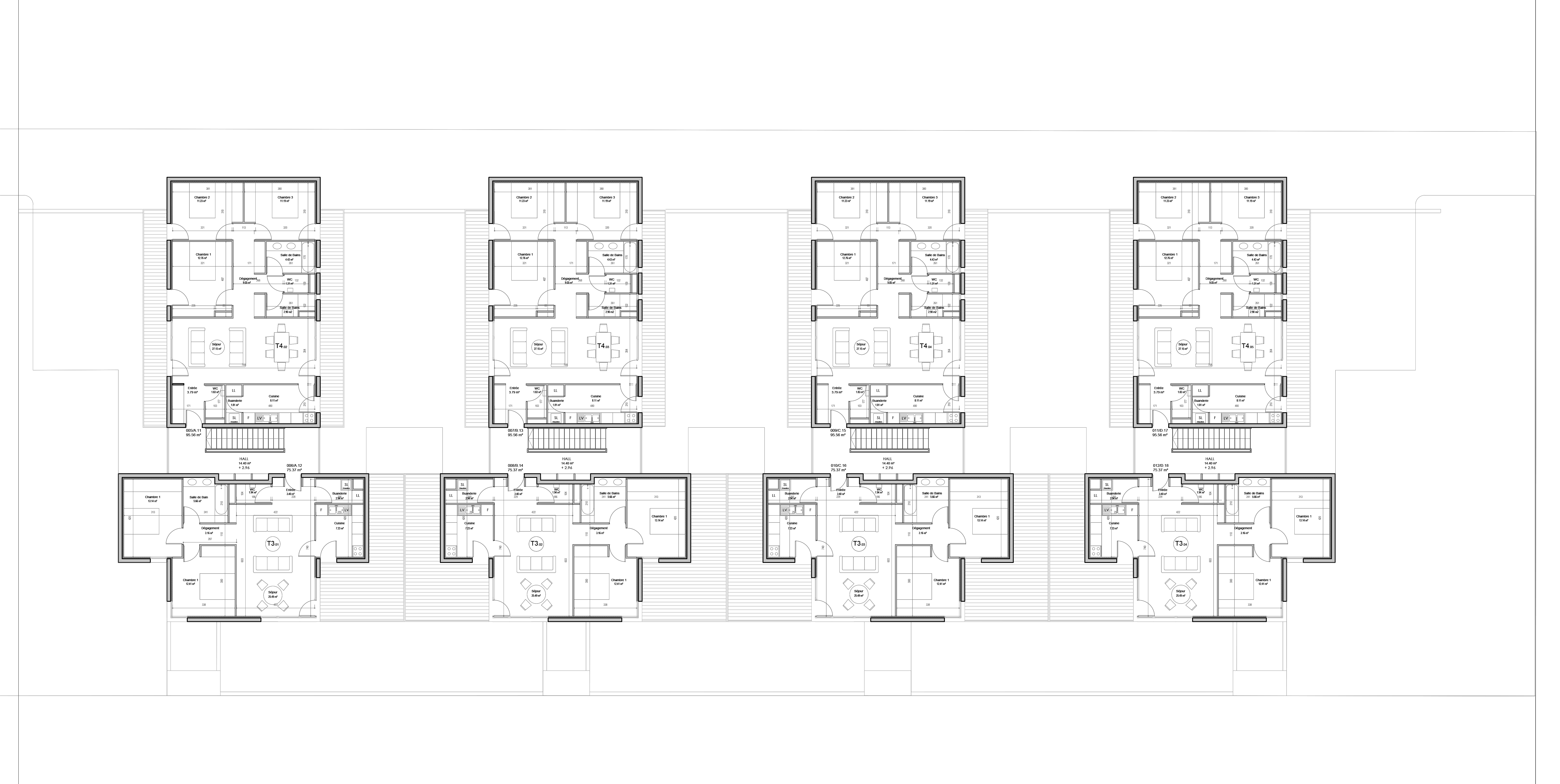
19 Social Housing
Melun, 2019
Date
2019
Location
Melun