Extension Hotel Amari

Doha, 2013

Extension Hotel Amari, Doha, Qatar, 2013 Dragan Architecture Paris
  • Extension Hotel Amari, Doha, Qatar, 2013 Dragan Architecture Paris
  • Extension Hotel Amari, Doha, Qatar, 2013 Dragan Architecture Paris

Date 2013
Location Doha

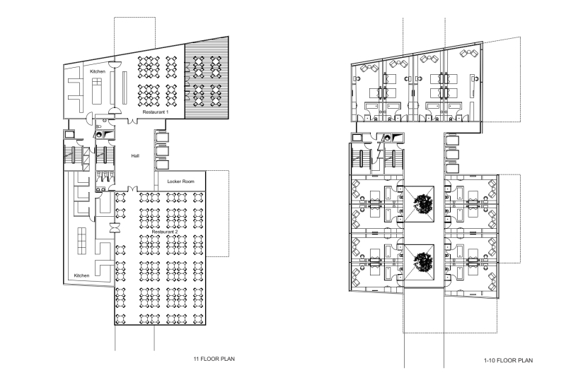
Extension of the Amari hotel on a plot on the other side of the street. To ensure the functional continuity of the whole, a bridge above the street connects the two buildings, the reception remaining in the existing building. The new building has 120 new rooms on 10 floors. The public areas (restaurants, cafes, business center) are on the top floor, to enjoy the breathtaking view of Doha Bay.

Extension Hotel Amari, Doha, Qatar, 2013 Dragan Architecture Paris
Extension Hotel Amari, Doha, Qatar, 2013 Dragan Architecture Paris